Réalisation de plans et de métrés grâce à la numérisation 3D
Gestion des sinistresLa numérisation 3D : un outil moderne et performant pour concevoir votre projet
Notre technologie de capture, reposant sur nos systèmes performants en numérisation 3D, ainsi que les méthodes avancées de capture par ordinateur et de traitement d’images ont permis à nos clients de modéliser leur chantier ou projet en 3D d’une manière performante et pertinente.
Notre Entrepôt
Cette technique a créé des avancées en termes de productivité dans tous les projets que nous avons poursuivis avec nos partenaires.
En effet, nos capacités de traitement des images basées sur l'innovation tridimensionnelle ont atteint des niveaux satisfaisants. Nous sommes à même de construire des cartographies des sites en image 3D et nous pouvons réaliser des supports en réalité virtuelle permettant aux acteurs du bâtiment d'accéder virtuellement aux équipements des bâtiments. La prise en charge de cette nouvelle technologie vous offrira une solution satisfaisante et pertinente qui vous permettra de gagner du temps, vous projeter et comprendre les contraintes de votre projet.
Un système de capture innovant pour la réalisation de plans et de métrés
EG-TE en métropole et en outre mer vous propose un véritable système de capture innovant, réaliste et interactif pour vous projeter sur votre chantier.
Pour votre immobilier commercial, la projection de votre rénovation, pour le génie civil et la construction, nous avons une solution performante et maitrisée de la modélisation.
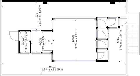
La capture d’une pièce en 3D vous permettra également de pouvoir réaliser des plans précis et d’effectuer le métré de votre chantier.
Pour une meilleure façon de documenter vos projets de construction ou de vous impliquer et de vous projeter dans votre projet de rénovation, n’hésitez pas à nous contacter.
Découvrez un exemple de notre modélisation 3D en cliquant sur le lien suivant :
https://my.matterport.com/show/?m=6UvMHud3LsE


